Neubau     Wiederverkauf    
Immobilien

Detached Villa · Neubau Alicante (Costa Blanca) · Aspe · Poligono 19

Ref.: 84329
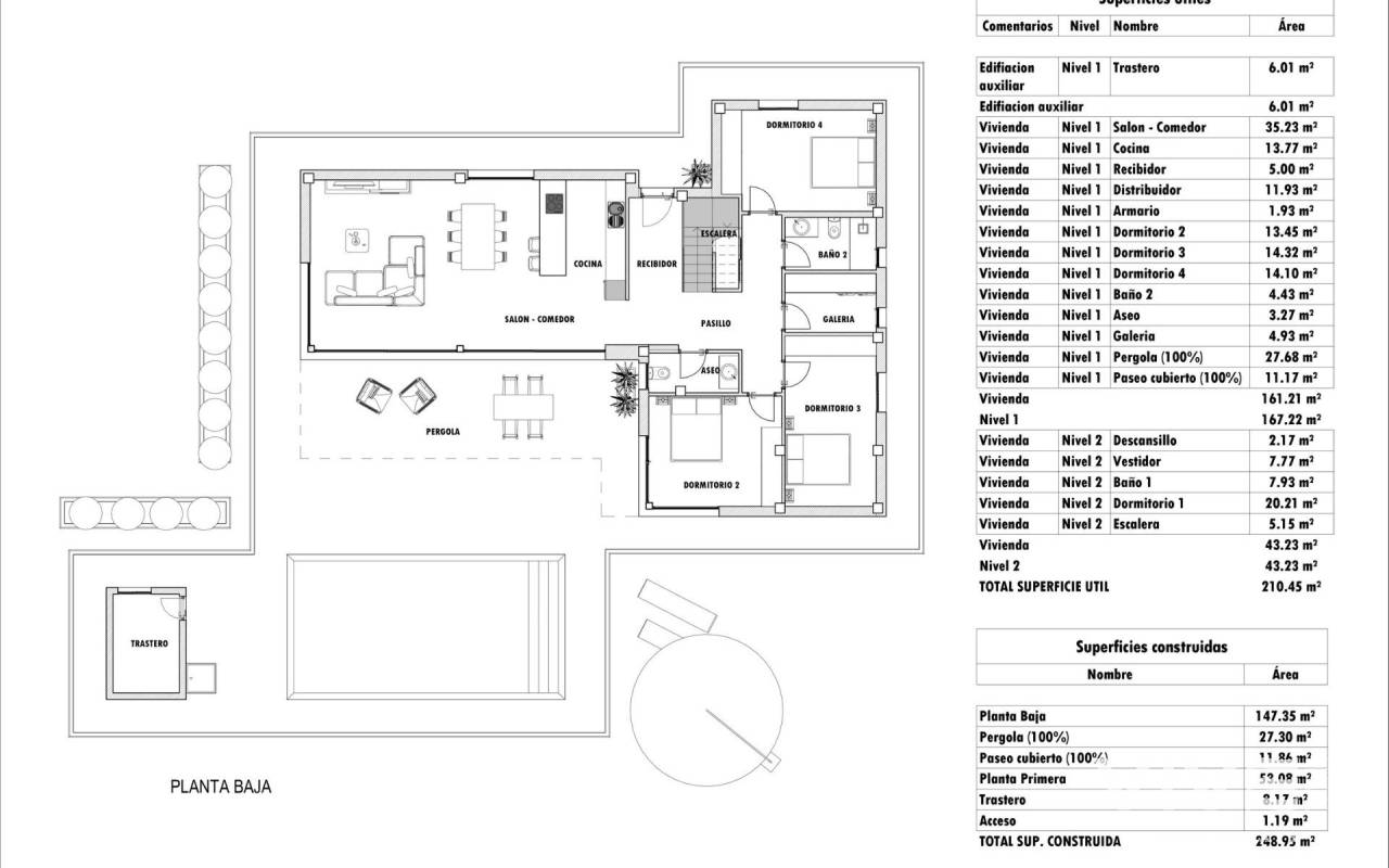
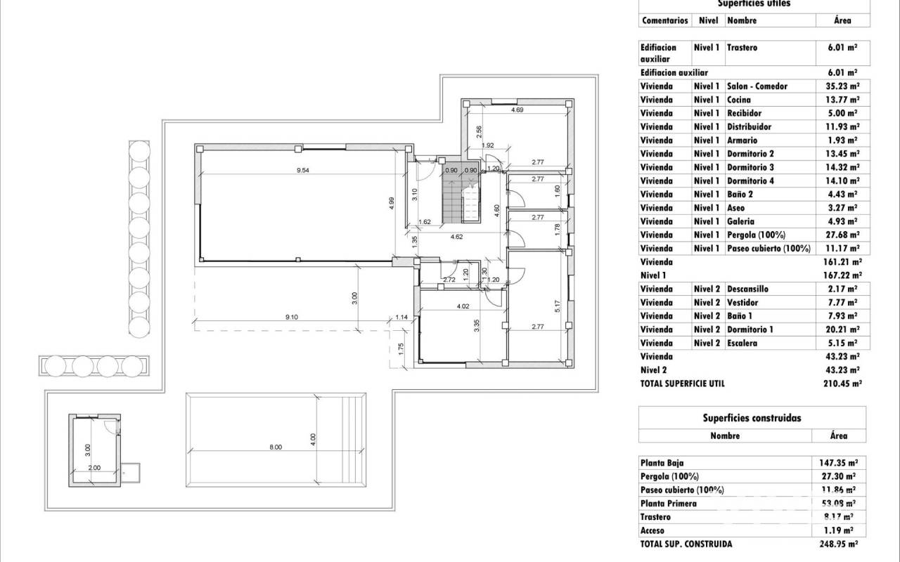
248m2 <13.172m2 4 3 Ja

Hauptmerkmale

Zimmer: 4
Badezimmer: 3
Gebaut: 248m2
Grundstück: 13.172m2
Energieeffizienzklasse: B

Charakteristik

Garten
Private pool
Gated
Near Schools
Air Conditioning: Pre-Installed
Parking - Space
Storage / Trastero
Number of Parking Spaces: 1
Double Bedrooms: 4
Location: Rural, Mountain
Beach: 25000 Meters
Terrace: 38 Msq.
Useable Build Space: 210 Msq.
Energieeffizienzklasse
Energiebewertung: B

Beschreibung

Neubauvillen in der Gemeinde Aspe. Neubauvillen mit verschiedenen Modellen zur Auswahl mit 2, 3 oder 4 Schlafzimmern, 1 oder 2 Etagen und in Plattenbauweise oder mit Struktur: Je nach Modell und gewähltem Grundstück wird der genaue Preis berechnet. Alle Villen werden auf rustikalen Grundstücken von mehr als 10.000 m² gebaut, von denen etwa 2.500 m² eingezäunt werden. Die Villen verfügen über eine offene Küche mit Wohnzimmer, Einbauschränke, einen privaten Pool, eine Veranda, einen Abstellraum und einen Außenparkplatz. Es stehen mehrere Grundstücke zur Auswahl. Für die Preisberechnung wurde ein Grundstück mit einem Preis von 75 000 Euro zugrunde gelegt (bei Wahl eines anderen Grundstücks ist die Differenz entsprechend dem Preis des Grundstücks zu zahlen). Die Fertigstellung erfolgt im Selbstbau, die Übergabe erfolgt ca. 12 Monate nach Erteilung der Baugenehmigung. Wenn Sie eine ruhige Umgebung suchen, in der Nähe von typisch spanischen Dörfern, fernab vom Massentourismus, umgeben von Bergen, mit einem sehr großen Grundstück und nur etwa 30 Minuten vom Meer entfernt, dann ist dies Ihr Zuhause. Aspe ist ein typisch spanisches Dorf mit allen Dienstleistungen für den täglichen Bedarf, umgeben von Bergen und mit mehreren Naturlandschaften in der Nähe, in denen Sie Wanderungen oder Mountainbike-Touren unternehmen können. Es liegt 25 km vom Strand, 9 km von Elche und etwa 20 km vom Flughafen Alicante entfernt.

Lage

Wirtschaft

Währungsrechner Text

POWERED BY HABENO

Geldwechsel

  • Pfund : 554.509 GBP
  • Russischen Rubel: 554.509 RUB
  • Schweizerfranken: 582.473 CHF
  • Chinesischen Yuan: 5.044.658 CNY
  • Dollar: 740.704 USD
  • Schwedische Krone: 6.995.534 SEK
  • Norwegische Krone: 6.908.265 NOK

Anfrage Informationen

Responsable del tratamiento: MAINDAMA GROUP S.L, Finalidad del tratamiento: Gestión y control de los servicios ofrecidos a través de la página Web de Servicios inmobiliarios, Envío de información a traves de newsletter y otros, Legitimación: Por consentimiento, Destinatarios: No se cederan los datos, salvo para elaborar contabilidad, Derechos de las personas interesadas: Acceder, rectificar y suprimir los datos, solicitar la portabilidad de los mismos, oponerse altratamiento y solicitar la limitación de éste, Procedencia de los datos: El Propio interesado, Información Adicional: Puede consultarse la información adicional y detallada sobre protección de datos Aquí.
WhatsApp