Neubau     Wiederverkauf    
Immobilien

Wohnung · Neubau Alicante (Costa Blanca) · Villajoyosa · Cala de Finestrat

Ref.: 28997
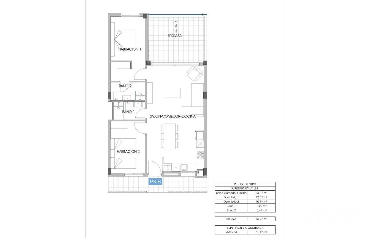
81m2 2 2 Ja

Hauptmerkmale

Zimmer: 2
Badezimmer: 2
Gebaut: 81m2
Energieeffizienzklasse: B

Charakteristik

Terrace: 15 Msq.
Gated
Near Schools
Near Commercial Center
Communal Pool
Near Bus Route
Elevator/Lift
Parking - Space
Near Tram Stop
Number of Parking Spaces: 1
Location: Coastal, Urbanisation
Double Bedrooms: 2
Beach: 1000 Meters
Useable Build Space: 70 Msq.
Energieeffizienzklasse
Energiebewertung: B

Beschreibung

Neubauwohnungen in Cala Finestrat, Villajoyosa Modernes Wohnen am Strand an der Costa Blanca Entdecken Sie eine atemberaubende neue Wohnanlage mit 52 hochwertigen Wohnungen, nur 1 km von Cala de Finestrat entfernt, eingebettet zwischen Villajoyosa, Finestrat und der pulsierenden Stadt Benidorm. Diese Wohnungen wurden so konzipiert, dass sie Komfort, Stil und Funktionalität vereinen. Sie bieten eine unschlagbare Lage, nur wenige Gehminuten vom Strand und Einkaufszentren entfernt, und eignen sich somit ideal als ganzjähriger Wohnsitz, für Urlaubsaufenthalte oder als Investition. Immobilienoptionen für Ihren Lebensstil Wohnungen im Erdgeschoss mit privaten Gärten Wohnungen in mittleren Etagen mit großen Terrassen Wohnungen in der obersten Etage mit beeindruckenden 46 m² großen Terrassen mit Meerblick Alle Wohnungen verfügen über 2 Schlafzimmer und 2 Badezimmer, großzügige Innenräume und ein durchdachtes Design, das das natürliche Licht optimal nutzt und den Wohnraum maximiert. Außergewöhnliche Lage mit hervorragender Infrastruktur Cala de Finestrat ist bekannt für seinen goldenen Sandstrand, das klare Wasser und die ruhige Atmosphäre, während gleichzeitig alle wichtigen Städte bequem zu erreichen sind. Entfernungen zu den wichtigsten Sehenswürdigkeiten: Strand von Cala de Finestrat – 1 km Einkaufszentrum La Marina – 400 m Restaurants, Fitnessstudios und Dienstleistungen – 400 m Golfplatz Puig Campana – 6 km Stadtzentrum von Benidorm – 5 km Altstadt von Villajoyosa – 6 km Flughafen Alicante – 55 km (ca. 40 Minuten mit dem Auto) Für Komfort und Genuss konzipiert Die Bewohner genießen erstklassige Annehmlichkeiten, darunter: Zwei große Gemeinschaftspools Grünflächen Fitnessgeräte im Freien Private überdachte Terrassen mit Meerblick ab der vierten Etage Jede Einheit wird mit hochwertigen Ausstattungen und energieeffizienten Systemen übergeben: Voll ausgestattete Küche mit Geräten Komplett ausgestattete Badezimmer Komplette Klimaanlage mit Thermostat Elektrische Rollläden in den Schlafzimmern Spotbeleuchtung in Küche und Badezimmern Privater Parkplatz Ideal zum Wohnen oder als Investition Dank seiner strategischen Lage, seiner modernen Ausstattung und seiner touristischen Attraktivität bietet dieses Projekt ein ausgezeichnetes Mietpotenzial und eine solide Investitionsmöglichkeit an der Costa Blanca. Kontaktieren Sie uns noch heute, um einen Besichtigungstermin zu vereinbaren oder weitere Informationen zu diesen exklusiven Neubauwohnungen in Cala Finestrat anzufordern. Ihr mediterranes Leben beginnt hier.

Lage

Wirtschaft

Währungsrechner Text

POWERED BY HABENO

Geldwechsel

  • Pfund : 301.571 GBP
  • Russischen Rubel: 301.571 RUB
  • Schweizerfranken: 319.544 CHF
  • Chinesischen Yuan: 2.791.616 CNY
  • Dollar: 410.459 USD
  • Schwedische Krone: 3.783.858 SEK
  • Norwegische Krone: 3.776.704 NOK

Anfrage Informationen

Responsable del tratamiento: MAINDAMA GROUP S.L, Finalidad del tratamiento: Gestión y control de los servicios ofrecidos a través de la página Web de Servicios inmobiliarios, Envío de información a traves de newsletter y otros, Legitimación: Por consentimiento, Destinatarios: No se cederan los datos, salvo para elaborar contabilidad, Derechos de las personas interesadas: Acceder, rectificar y suprimir los datos, solicitar la portabilidad de los mismos, oponerse altratamiento y solicitar la limitación de éste, Procedencia de los datos: El Propio interesado, Información Adicional: Puede consultarse la información adicional y detallada sobre protección de datos Aquí.
WhatsApp