Neubau     Wiederverkauf    
Immobilien

Wohnung · Neubau Alicante (Costa Blanca) · Alicante · Carolinas Bajas

Ref.: 55673
82m2 2 2 Ja

Hauptmerkmale

Zimmer: 2
Badezimmer: 2
Gebaut: 82m2
Energieeffizienzklasse: B

Charakteristik

Near Schools
Air Conditioning: Pre-Installed
Near Commercial Center
Communal Pool
Near Bus Route
Near Train Station
Location: Coastal, Urbanisation
Double Bedrooms: 2
Space
Terrace: 5 Msq.
Beach: 1000 Meters
Useable Build Space: 74 Msq.
Energieeffizienzklasse
Energiebewertung: B

Beschreibung

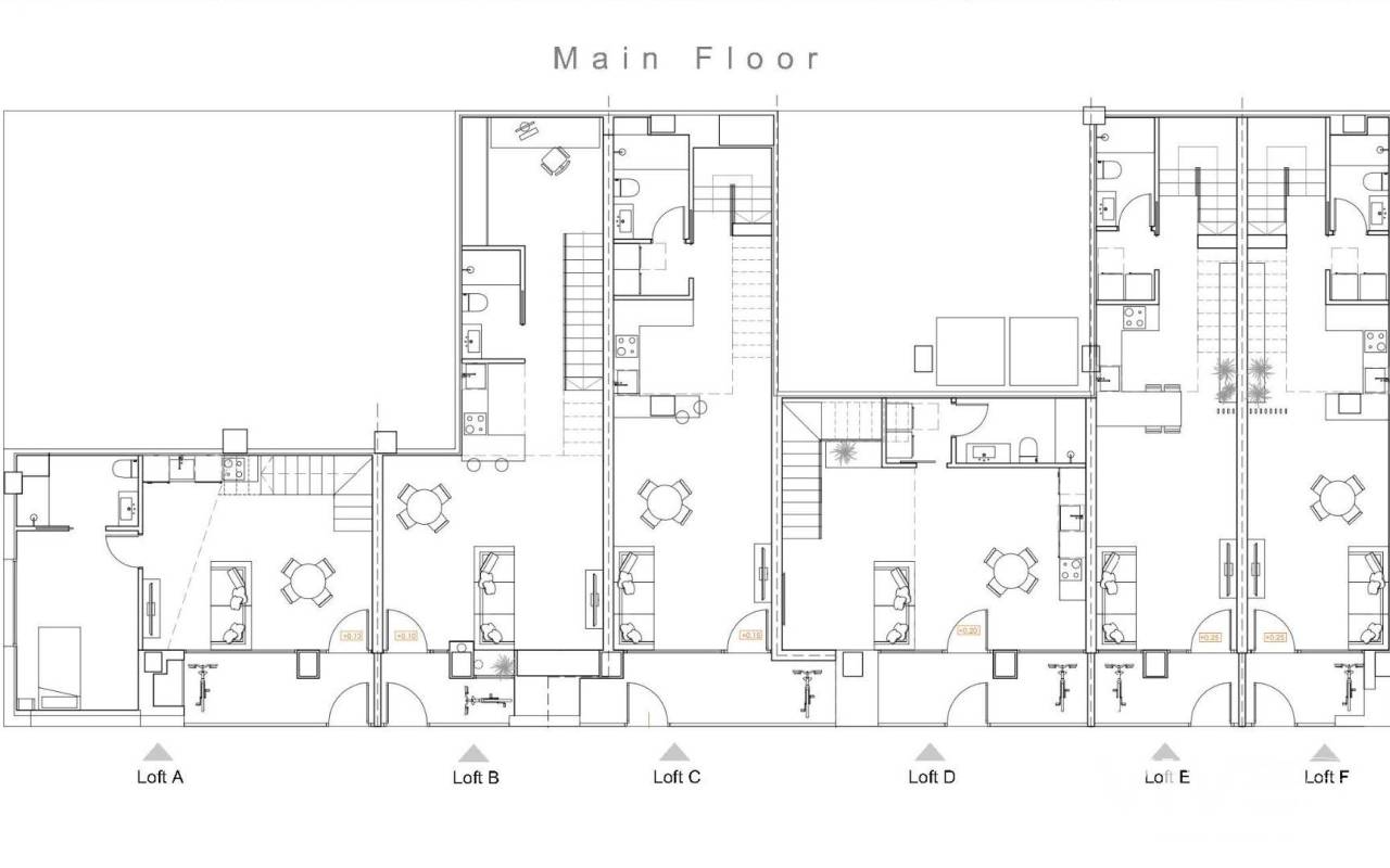
Moderne Duplex-Loft-Wohnungen im Herzen von Alicante Exklusives Neubauprojekt im Stadtteil Benalúa Entdecken Sie eine außergewöhnliche Gelegenheit, eine stilvolle Duplex-Loft-Wohnung in Benalúa zu erwerben, einem der lebendigsten und am besten angebundenen Stadtteile von Alicante. Dieses einzigartige Projekt verwandelt sechs ungenutzte Gewerbeeinheiten in moderne Wohnlofts und bietet einen urbanen Lebensstil nur 1 km von der Mittelmeerküste entfernt. Benalúa ist bekannt für seine lokalen Geschäfte, Cafés, kulturellen Aktivitäten und seine Nähe zum Stadtzentrum, was es zu einer sehr begehrten Gegend für Einwohner und Investoren macht. Zeitgenössisches Design im Loft-Stil Jede Wohnung wurde komplett neu gestaltet, um einen frischen, offenen und eleganten Wohnraum zu bieten. Das Angebot umfasst Duplex-Lofts mit 1 oder 2 Schlafzimmern und 2 Badezimmern, die alle über beeindruckende doppelt hohe Räume verfügen, die das natürliche Licht verstärken und ein echtes Loft-Ambiente schaffen. Im Obergeschoss befinden sich ein Schlafzimmer und ein komplettes Badezimmer, die Privatsphäre und Komfort bieten. Mit einem separaten Zugang von der Straße und einer privaten Terrasse verbindet jede Wohnung moderne Architektur mit praktischem Wohnen. Hochwertige Oberflächen, zeitgemäße Grundrisse und helle Innenräume machen diese Lofts zu einer hervorragenden Wahl für alle, die Stil und Funktionalität suchen. Komfort und Gemeinschaftseinrichtungen Die Bewohner haben Zugang zu einem Gemeinschaftspool im Gebäude, der an warmen Mittelmeertagen für eine entspannte und erfrischende Atmosphäre sorgt. Die privaten Terrassen und separaten Eingänge sorgen für zusätzlichen Komfort und Exklusivität. Erstklassige Lage in der Nähe wichtiger Sehenswürdigkeiten Das Projekt ist sowohl zum Wohnen als auch als Investition perfekt gelegen und von wichtigen Dienstleistungen und Sehenswürdigkeiten umgeben: Strand von Alicante: 1 km Renfe-Bahnhof: 0,8 km Einkaufszentrum El Corte Inglés: 0,7 km Justizpalast von Alicante: 0,5 km Flughafen Alicante: 12 km Yachthafen und Hafen von Alicante: 2 km Golfplätze (Alicante Golf): 7 km Die Gegend bietet eine hervorragende Anbindung an den öffentlichen Nahverkehr, kulturelle Einrichtungen, Grünflächen und einen einfachen Zugang zu den schönen Stränden der Stadt. Eine kluge Investition in den Lebensstil an der Küste von Alicante Ob Sie nun einen Hauptwohnsitz, eine Ferienimmobilie oder eine Investition mit hohem Vermietungspotenzial suchen, diese Duplex-Loft-Wohnungen in Benalúa bieten eine einzigartige Gelegenheit in einer der vielversprechendsten Gegenden Alicantes. Kontaktieren Sie uns noch heute, um Ihr exklusives Loft zu reservieren und modernes Wohnen im Herzen von Alicante zu genießen. * Zugang zum Swimmingpool vorbehaltlich der Genehmigung durch die Eigentümergemeinschaft, wenn die Nutzung der Räumlichkeiten geändert wird.

Lage

Wirtschaft

Währungsrechner Text

POWERED BY HABENO

Geldwechsel

  • Pfund : 278.850 GBP
  • Russischen Rubel: 278.850 RUB
  • Schweizerfranken: 295.300 CHF
  • Chinesischen Yuan: 2.574.651 CNY
  • Dollar: 377.386 USD
  • Schwedische Krone: 3.455.880 SEK
  • Norwegische Krone: 3.524.338 NOK

Anfrage Informationen

Responsable del tratamiento: MAINDAMA GROUP S.L, Finalidad del tratamiento: Gestión y control de los servicios ofrecidos a través de la página Web de Servicios inmobiliarios, Envío de información a traves de newsletter y otros, Legitimación: Por consentimiento, Destinatarios: No se cederan los datos, salvo para elaborar contabilidad, Derechos de las personas interesadas: Acceder, rectificar y suprimir los datos, solicitar la portabilidad de los mismos, oponerse altratamiento y solicitar la limitación de éste, Procedencia de los datos: El Propio interesado, Información Adicional: Puede consultarse la información adicional y detallada sobre protección de datos Aquí.