Neubau     Wiederverkauf    
Immobilien

Town House · Neubau Murcia (Costa Calida) · Cartagena · La Azohía

Ref.: 51419
79m2 <19m2 2 3

Hauptmerkmale

Zimmer: 2
Badezimmer: 3
Gebaut: 79m2
Grundstück: 19m2
Energieeffizienzklasse: B

Charakteristik

Garten
Gated
Near Schools
Air Conditioning: Pre-Installed
Solarium: Yes
Parking - Space
Number of Parking Spaces: 1
Location: Coastal
Useable Build Space: 56 Msq.
Terrace: 28 Msq.
Beach: 50 Meters
Single Bedrooms: 1, Double Bedrooms: 1
Energieeffizienzklasse
Energiebewertung: B

Beschreibung

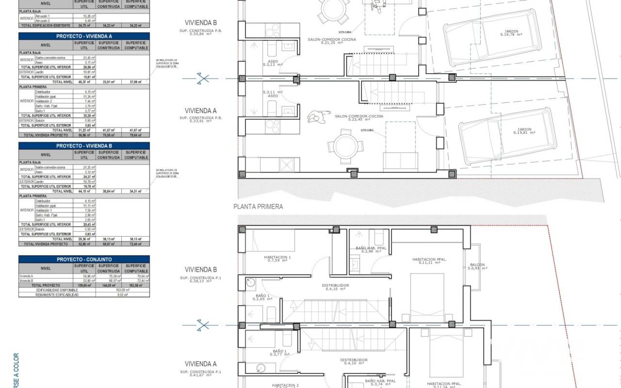
Neubau-Reihenhäuser 50 m vom Strand entfernt in La Azohia Cartagena Exklusive Häuser an der Küste, nur wenige Schritte vom Mittelmeer entfernt Entdecken Sie dieses sehr begrenzte Neubauprojekt mit nur zwei modernen Reihenhäusern, die nur 50 Meter vom Strand in La Azohia, Cartagena, entfernt liegen. Diese privilegierte Enklave an der Costa Calida ist bekannt für ihr kristallklares Wasser, ihre entspannte Atmosphäre und ihre unberührte Natur. La Azohia ist ideal für diejenigen, die Ruhe am Meer suchen, und bietet einen authentischen mediterranen Lebensstil mit kleinen Buchten, Restaurants am Meer und schönen Küstenwanderwegen. Modernes Layout mit Meerblick und privatem Solarium Jedes Stadthaus erstreckt sich über zwei Etagen und verfügt über ein privates Dachsolarium mit freiem Blick auf das Mittelmeer. Das Erdgeschoss verfügt über einen hellen, offenen Wohn- und Essbereich mit Küchenbereich, der so gestaltet ist, dass er maximales Tageslicht und Komfort bietet. Auf dieser Ebene befinden sich auch ein komplettes Badezimmer und ein direkter Zugang zu einem privaten Garten. Der Gartenbereich bietet Flexibilität, da er als Parkplatz genutzt oder gegen Aufpreis mit einem privaten Swimmingpool aufgewertet werden kann. Im ersten Stock umfasst der Schlafbereich ein geräumiges Hauptschlafzimmer mit eigenem Bad, ein zweites Einzelzimmer und ein zusätzliches Badezimmer. Die oberste Etage ist einem privaten Solarium gewidmet, einem außergewöhnlichen Ort, um den Meerblick zu genießen, das ganze Jahr über zu sonnenbaden oder einen Chill-out-Bereich für das Leben im Freien zu schaffen. Hochwertige Ausstattung und Komfortmerkmale Diese neu gebauten Reihenhäuser sind mit hochwertigen Materialien und Oberflächen ausgestattet, um Langlebigkeit, Komfort und modernen Stil zu gewährleisten. Zur Ausstattung gehören Einbauschränke in den Schlafzimmern, Vorinstallationen für eine Klimaanlage und Vorinstallationen für die Küche, sodass Käufer den Raum nach ihrem Geschmack gestalten können. Das zeitgemäße Design in Kombination mit funktionalen Grundrissen macht diese Häuser ideal als Dauerwohnsitz, Ferienhaus oder Investitionsobjekt. Erstklassige Lage in La Azohia Cartagena La Azohia ist ein charmantes Küstendorf in der Gemeinde Cartagena, das für seine ruhige Umgebung, das geschützte Meeresgebiet und die Nähe zur Natur geschätzt wird. Die Gegend bietet grundlegende Dienstleistungen, lokale Restaurants und eine gute Anbindung an größere Städte und Einrichtungen, während sie gleichzeitig ihren entspannten Charme am Meer bewahrt. Wichtige Entfernungen zu Sehenswürdigkeiten Strand von La Azohia: 50 m Stadtzentrum von Cartagena: 25 km Yachthafen Puerto de Mazarron: 20 km La Manga Club Golf Resort: 35 km Flughafen Murcia Corvera: 45 km Flughafen Alicante: 120 km Mediterraner Lebensstil am Meer In La Azohia zu leben bedeutet, das ganze Jahr über Sonnenschein, Meerblick und ein gemächlicheres Lebenstempo zu genießen. Die Kombination aus Strandnähe, modernem Design und begrenzter Verfügbarkeit macht dieses Angebot zu einer einzigartigen Gelegenheit an der Costa Calida. Kontaktieren Sie uns noch heute Verpassen Sie nicht die Chance, ein neu gebautes Stadthaus nur wenige Schritte vom Meer entfernt in La Azohia zu erwerben. Kontaktieren Sie uns jetzt für weitere Informationen oder um eine Besichtigung zu vereinbaren und sich eines dieser exklusiven Häuser an der Küste zu sichern.

Lage

Wirtschaft

Währungsrechner Text

POWERED BY HABENO

Geldwechsel

  • Pfund : 221.136 GBP
  • Russischen Rubel: 221.136 RUB
  • Schweizerfranken: 234.039 CHF
  • Chinesischen Yuan: 2.030.463 CNY
  • Dollar: 293.684 USD
  • Schwedische Krone: 2.773.890 SEK
  • Norwegische Krone: 2.853.068 NOK

Anfrage Informationen

Responsable del tratamiento: MAINDAMA GROUP S.L, Finalidad del tratamiento: Gestión y control de los servicios ofrecidos a través de la página Web de Servicios inmobiliarios, Envío de información a traves de newsletter y otros, Legitimación: Por consentimiento, Destinatarios: No se cederan los datos, salvo para elaborar contabilidad, Derechos de las personas interesadas: Acceder, rectificar y suprimir los datos, solicitar la portabilidad de los mismos, oponerse altratamiento y solicitar la limitación de éste, Procedencia de los datos: El Propio interesado, Información Adicional: Puede consultarse la información adicional y detallada sobre protección de datos Aquí.