Neubau     Wiederverkauf    
Immobilien

Detached Villa · Neubau Almeria · Vera · Vera playa

Ref.: 15686
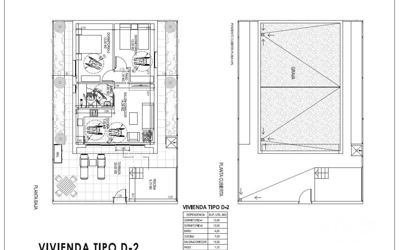
56m2 2 1 Ja

Hauptmerkmale

Zimmer: 2
Badezimmer: 1
Gebaut: 56m2
Energieeffizienzklasse: A

Charakteristik

Double Bedrooms: 2
Terrace: 56 Msq.
First Line to the Sea
Beach: 20 Meters
Useable Build Space: 51 Msq.
Licensed Tourist Property
Garten
Fitnessstudio
Private pool
Gated
Near Schools
Air Conditioning: Pre-Installed
Near Commercial Center
Communal Pool
Near Bus Route
Near Childrens Parks
Views: Sea
Games Room
Parking - Space
Number of Parking Spaces: 1
Location: Coastal, Urbanisation
Energieeffizienzklasse
Energiebewertung: A

Beschreibung

Luxuriöse Ferienwohnungen und Villen mit Privatstrand in erster Strandlinie in Vera Playa-Almería Exklusives mediterranes Resort in Vera Playa Entdecken Sie ein einzigartiges, hochwertiges Wohnresort in Vera Playa, einer der attraktivsten Küstenregionen Almerías. Diese außergewöhnliche Anlage setzt neue Maßstäbe für mediterranen Luxus und verbindet moderne Architektur, natürliches Licht und unmittelbare Nähe zum Meer. Der Komplex wurde mit Blick auf Privatsphäre, Komfort und Raffinesse entworfen und bietet einen unvergleichlichen Lebensstil in privilegierter Lage direkt am Strand. Vera Playa ist bekannt für seine breiten Sandstrände, die entspannte Atmosphäre und das hervorragende Klima, was es zu einem idealen Ziel sowohl für Investitionen als auch für den Urlaub macht. Elegante Apartments und private Villen am Meer Das Projekt umfasst 156 Ferienwohnungen sowie 44 Doppelhaushälften und freistehende Villen, die durchdacht in einer landschaftlich gestalteten Umgebung verteilt sind. Die Wohnungen befinden sich in modernen Flachbauten und sind mit 1 oder 2 Schlafzimmern ausgestattet. Die Einheiten im Erdgeschoss verfügen über großzügige Terrassen, wobei ausgewählte Wohnungen optional mit einem privaten Whirlpool ausgestattet sind. Die Wohnungen in den mittleren Etagen bieten großzügige Außenbereiche mit Meerblick, und die Penthäuser verfügen über Terrassen und private Sonnenterrassen mit atemberaubendem Meerblick. Die Villen stehen für ein Höchstmaß an Exklusivität innerhalb des Resorts. Diese Häuser befinden sich in der privilegiertesten Lage direkt am Meer und bieten 2 Schlafzimmer, 1 Badezimmer, private Swimmingpools und Grillbereiche, sodass die Bewohner Unabhängigkeit und Komfort nur wenige Schritte vom Strand entfernt genießen können. Privatstrand und erstklassige Resort-Einrichtungen Eines der herausragendsten Merkmale dieser Anlage ist der private Sandstrand innerhalb des Komplexes, der eine sichere Umgebung mit direktem Zugang zum Strand von Vera Playa bietet. Die Bewohner können zudem eine breite Palette an Annehmlichkeiten im Resort-Stil genießen, darunter zwei Gemeinschaftspools, von denen einer beheizt ist, einen Beach Club mit internationaler Küche sowie einen Social Club mit Fitnessstudio, Sauna, Business Center, Kinderclub und Spielbereich. Jede Immobilie verfügt über einen Außenparkplatz, und der gesamte Komplex wurde so gestaltet, dass er den Standards für Barrierefreiheit entspricht, einschließlich Wohnungen, die für Menschen mit eingeschränkter Mobilität angepasst sind. Erstklassige Lage mit hervorragender Anbindung Stadtzentrum von Vera 6 km Direkter Zugang zum Strand von Vera Playa Yachthafen von Garrucha 5 km Mojácar 10 km Desert Springs Golf 8 km Valle del Este Golf 6 km Flughafen Almería 85 km Zukünftiger AVE-Hochgeschwindigkeitsbahnhof in der Nähe Die Gegend ist über die Autobahnen AP 7 und A 7 gut erreichbar, was bequeme Reisen entlang der Küste und in die großen Städte gewährleistet. Investitionsmöglichkeit mit hoher Rendite Es handelt sich um vollständig lizenzierte Ferienimmobilien, die von einem professionellen Betreiber verwaltet werden, sodass Eigentümer die Immobilien selbst nutzen und gleichzeitig Mieteinnahmen erzielen können, wenn sie nicht genutzt werden. Darüber hinaus ist die Mehrwertsteuer abzugsfähig, was erhebliche Einsparungen beim Kauf ermöglicht und das Investitionspotenzial erhöht. Sichern Sie sich Ihre Luxusimmobilie in Vera Playa Ob Sie nun nach einem erstklassigen Ferienhaus oder einer renditestarken Investition an der Mittelmeerküste suchen – dieses exklusive Resort bietet eine seltene Gelegenheit. Kontaktieren Sie uns noch heute, um weitere Informationen zu erhalten, eine Besichtigung zu vereinbaren und sich Ihren Platz in dieser außergewöhnlichen Anlage zu sichern. 278

Lage

Wirtschaft

Währungsrechner Text

POWERED BY HABENO

Geldwechsel

  • Pfund : 320.487 GBP
  • Russischen Rubel: 320.487 RUB
  • Schweizerfranken: 338.661 CHF
  • Chinesischen Yuan: 2.920.151 CNY
  • Dollar: 430.569 USD
  • Schwedische Krone: 3.992.115 SEK
  • Norwegische Krone: 3.994.890 NOK

Anfrage Informationen

Responsable del tratamiento: MAINDAMA GROUP S.L, Finalidad del tratamiento: Gestión y control de los servicios ofrecidos a través de la página Web de Servicios inmobiliarios, Envío de información a traves de newsletter y otros, Legitimación: Por consentimiento, Destinatarios: No se cederan los datos, salvo para elaborar contabilidad, Derechos de las personas interesadas: Acceder, rectificar y suprimir los datos, solicitar la portabilidad de los mismos, oponerse altratamiento y solicitar la limitación de éste, Procedencia de los datos: El Propio interesado, Información Adicional: Puede consultarse la información adicional y detallada sobre protección de datos Aquí.
WhatsApp