Obra Nueva     Reventa    
Propiedades

Town House · Nueva construcción Alicante (Costa Blanca) · Bigastro · pueblo

Ref.: 45787
163m2 <100m2 3 2

Características clave

Habitaciones: 3
Baños: 2
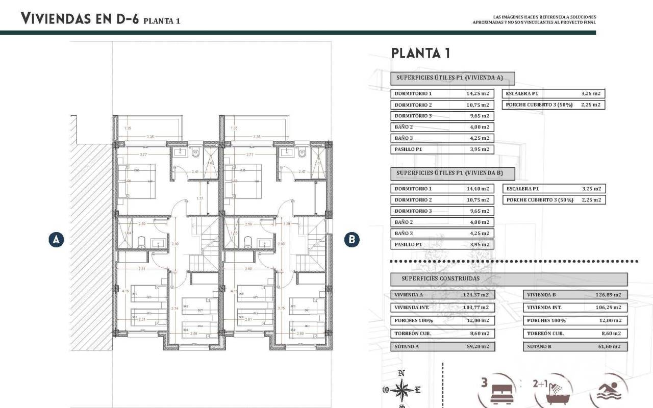
Construidos: 163m2
Parcela: 100m2
Calificación energética: B

Características

Gated
Near Schools
Air Conditioning: Pre-Installed
Communal Pool
Near Bus Route
Solarium: Yes
Under-Build / Basement
Parking - Space
Storage / Trastero
Toilet: 1
Number of Parking Spaces: 1
Double Bedrooms: 3
Location: Rural, Urbanisation
Beach: 22000 Meters
Terrace: 79 Msq.
Useable Build Space: 103 Msq.
Calificación energética
Calificación energética: B

Descripción

Promoción con tan solo 2 viviendas adosadas de obra nueva en Bigastro. Cada vivienda consta de sótano para garaje de 59m2, planta baja con salón-cocina, aseo y 2 terrazas (frontal y trasera), planta primera con 3 dormitorios y 2 baños (uno de ellos ensuite) y 1 terraza y planta azotea con solarium de unos 40m2. Puerta de entrada blindada, agua caliente por aerotermia, placa solar fotovoltaica, persianas eléctricas en salón y dormitorios, pre instalación de aire acondicionado por conductos y puerta de garaje motorizada. Tienen acceso a la piscina comunitaria de la urbanización a la que pertenecen estas viviendas. Ubicación privilegiada con excelentes conexiones Bigastro es una encantadora localidad de la comarca de la Vega Baja, conocida por su ambiente tranquilo, sus servicios locales y sus excelentes conexiones de transporte. Desde esta zona residencial, los residentes pueden llegar fácilmente a Centro de Bigastro 0,5 km Orihuela 5 km Playas de Guardamar del Segura 15 km Centro Comercial Zenia Boulevard 20 km Aeropuerto Internacional de Alicante 48 km Hospital Vega Baja a 10 km La autopista AP 7 proporciona un rápido acceso a Alicante, Murcia y las localidades costeras de los alrededores, lo que convierte a Bigastro en un lugar ideal tanto para vivir como para desplazarse al trabajo. Una zona en crecimiento con todos los servicios esenciales Bigastro cuenta con supermercados, colegios, instalaciones deportivas, parques y una gran variedad de tiendas y restaurantes locales. Su combinación de comodidad, entorno tranquilo y excelentes conexiones lo ha convertido en una opción residencial cada vez más popular tanto para los compradores locales como para los internacionales. Asegúrese hoy mismo su nueva vivienda en Bigastro Tanto si busca un moderno refugio vacacional como una cómoda residencia para todo el año, este nuevo proyecto de construcción en Bigastro es una oportunidad que no debe dejar pasar. Póngase en contacto con nosotros ahora para obtener más información o concertar una visita.

Localización

Economía

Esta información que se proporciona aquí está sujeta a errores y no forma parte de ningún contrato. La oferta se puede cambiar o retirar sin previo aviso. Los precios no incluyen los costes de compra

POWERED BY HABENO

Cambio de divisas

  • Libras: 217.920 GBP
  • Rublo Ruso: 217.920 RUB
  • Franco Suizo: 230.775 CHF
  • Yuan Chino: 2.012.075 CNY
  • Dolar: 294.925 USD
  • Corona Sueca: 2.700.750 SEK
  • Corona Noruega: 2.754.250 NOK

Solicitar Información

Responsable del tratamiento: MAINDAMA GROUP S.L, Finalidad del tratamiento: Gestión y control de los servicios ofrecidos a través de la página Web de Servicios inmobiliarios, Envío de información a traves de newsletter y otros, Legitimación: Por consentimiento, Destinatarios: No se cederan los datos, salvo para elaborar contabilidad, Derechos de las personas interesadas: Acceder, rectificar y suprimir los datos, solicitar la portabilidad de los mismos, oponerse altratamiento y solicitar la limitación de éste, Procedencia de los datos: El Propio interesado, Información Adicional: Puede consultarse la información adicional y detallada sobre protección de datos Aquí.