Obra Nueva     Reventa    
Propiedades

Apartamento · Nueva construcción Alicante (Costa Blanca) · Torrevieja · Lago Jardín II

Ref.: 77705
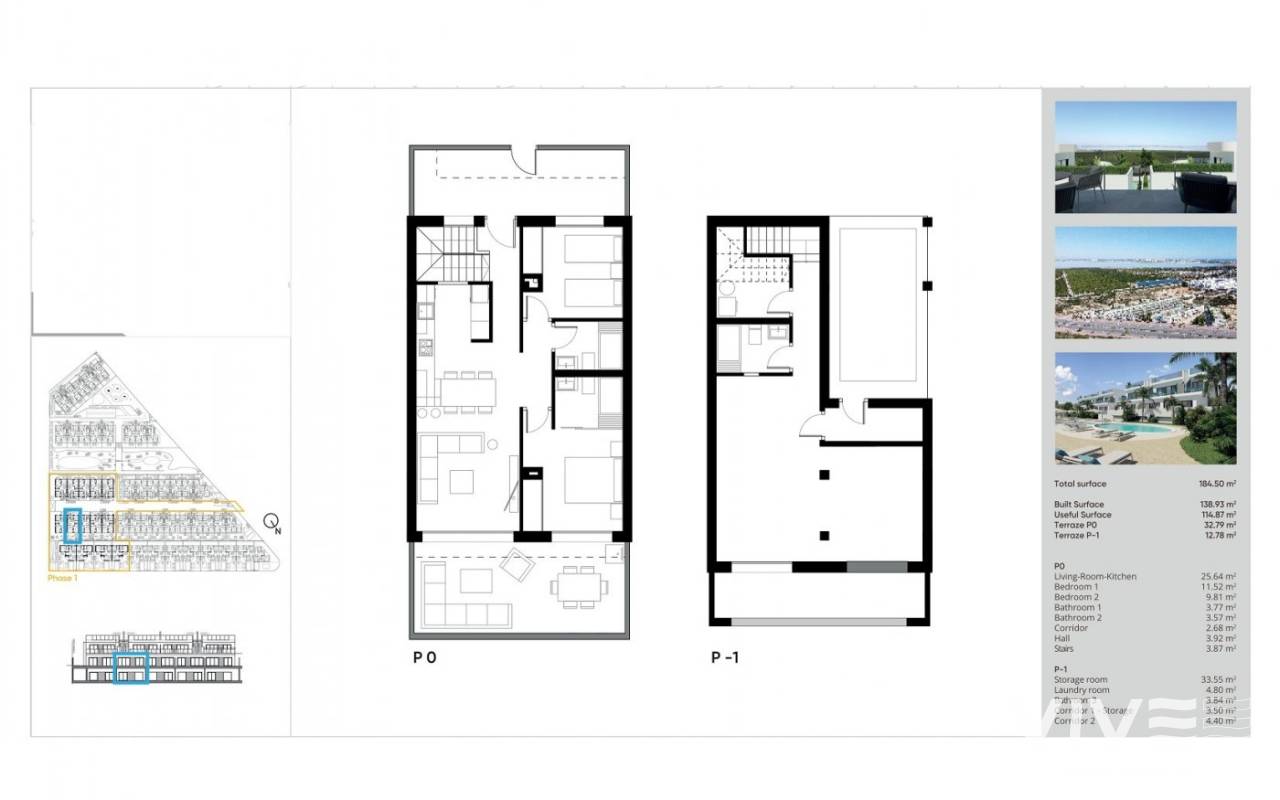
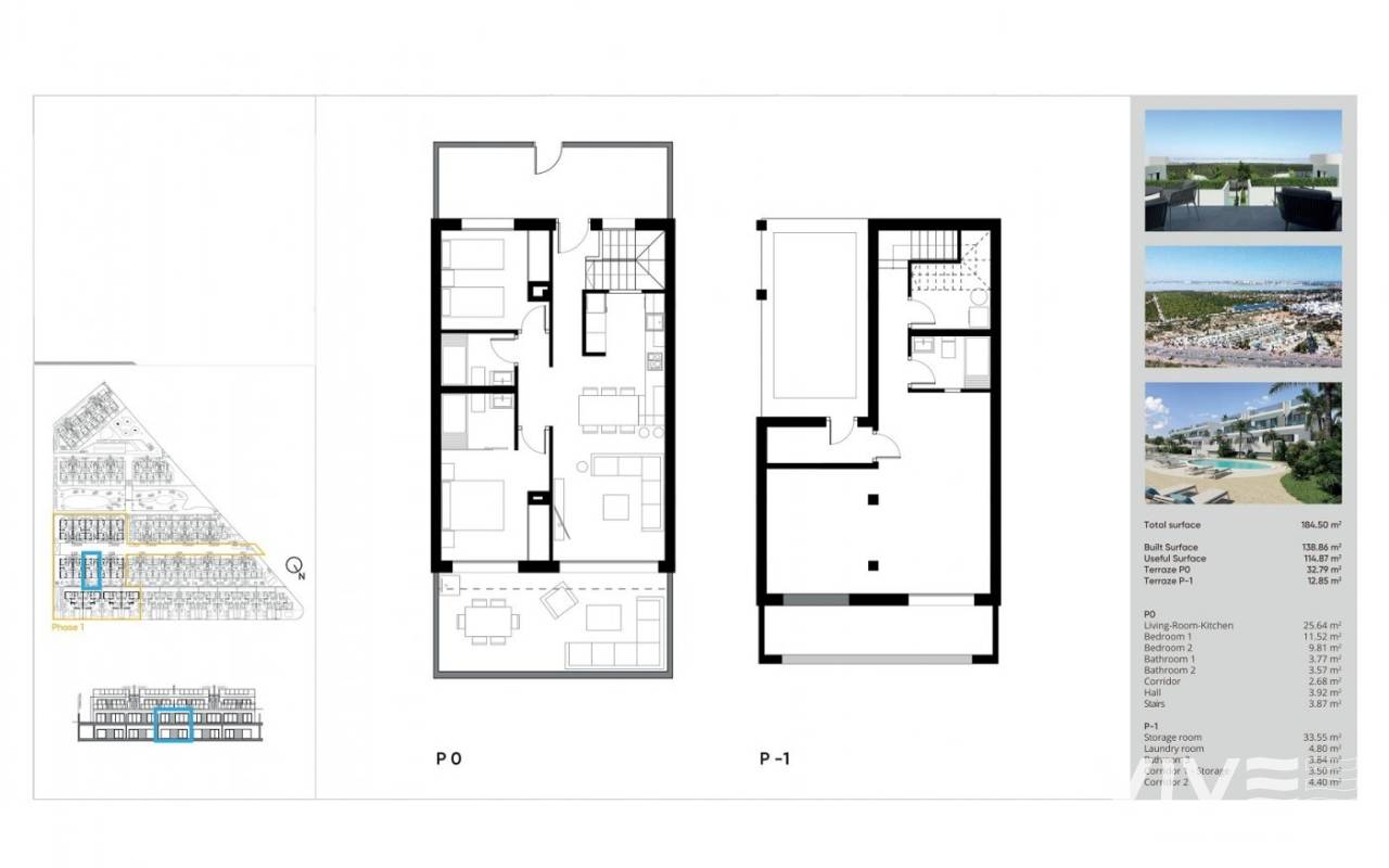
75m2 2 2

Características clave

Habitaciones: 2
Baños: 2
Construidos: 75m2
Calificación energética: B

Características

Terminado
Gated
Near Schools
Air Conditioning: Pre-Installed
Near Trees
Near Commercial Center
Communal Pool
Near Bus Route
Solarium: Yes
Parking - Space
Number of Parking Spaces: 1
Beach: 4000 Meters
Location: Coastal, Urbanisation
Double Bedrooms: 2
Useable Build Space: 65 Msq.
Terrace: 91 Msq.
Calificación energética
Calificación energética: B

Descripción

RESIDENCIAL DE OBRA NUEVA EN LOS BALCONES, TORREVIEJA Complejo residencial de nueva construcción de pareados y bungalows situado en Los Balcones con vistas al lago rosa. Los bungalows de planta alta disponen de 2 dormitorios, 2 baños, cocina americana con amplio salón, armarios empotrados, terraza, solarium privado y plaza de aparcamiento subterráneo. Nuevo y exclusivo residencial con grandes zonas comunes; jardines, jardín-gimnasio, parque infantil, 2 grandes piscinas comunitarias - una de ellas para adultos, y la otra para niños. Los Balcones es un pequeño pueblo situado cerca del sur de Torrevieja. Torrevieja es una ciudad española en la provincia de Alicante, en la Costa Blanca. Es conocida por su clima y su costa típicamente mediterráneos. Cuenta con paseos marítimos con complejos turísticos a lo largo de sus playas de arena. El pequeño Museo del Mar y la Sal alberga exposiciones sobre la historia pesquera y salinera de la ciudad. En el interior, el Parque Natural de las Lagunas de La Mata-Torrevieja cuenta con senderos y dos lagunas saladas, una rosa y otra verde. El aeropuerto de Alicante se encuentra a 40 minutos y el de Murcia a una hora.

Localización

Economía

Esta información que se proporciona aquí está sujeta a errores y no forma parte de ningún contrato. La oferta se puede cambiar o retirar sin previo aviso. Los precios no incluyen los costes de compra

POWERED BY HABENO

Cambio de divisas

  • Libras: 286.176 GBP
  • Rublo Ruso: 286.176 RUB
  • Franco Suizo: 302.874 CHF
  • Yuan Chino: 2.627.658 CNY
  • Dolar: 380.061 USD
  • Corona Sueca: 3.589.740 SEK
  • Corona Noruega: 3.692.205 NOK

Solicitar Información

Responsable del tratamiento: MAINDAMA GROUP S.L, Finalidad del tratamiento: Gestión y control de los servicios ofrecidos a través de la página Web de Servicios inmobiliarios, Envío de información a traves de newsletter y otros, Legitimación: Por consentimiento, Destinatarios: No se cederan los datos, salvo para elaborar contabilidad, Derechos de las personas interesadas: Acceder, rectificar y suprimir los datos, solicitar la portabilidad de los mismos, oponerse altratamiento y solicitar la limitación de éste, Procedencia de los datos: El Propio interesado, Información Adicional: Puede consultarse la información adicional y detallada sobre protección de datos Aquí.