Obra Nueva     Reventa    
Propiedades

Detached Villa · Nueva construcción Alicante (Costa Blanca) · Algorfa · La finca golf

Ref.: 53910
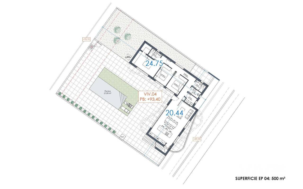
235m2 <375m2 3 2

Características clave

Habitaciones: 3
Baños: 2
Construidos: 235m2
Parcela: 375m2
Calificación energética: B

Características

Jardín
Private pool
Gated
Near Golf / Golf Resort Property
Near Schools
Location: Urbanisation
Air Conditioning: Pre-Installed
Near Commercial Center
Under-Build / Basement
Parking - Space
Laundry Room
Toilet: 1
Number of Parking Spaces: 1
Double Bedrooms: 3
Beach: 14000 Meters
Terrace: 60 Msq.
Useable Build Space: 135 Msq.
Calificación energética
Calificación energética: B

Descripción

Villas de nueva construcción en La Finca Golf Resort Algorfa Exclusiva promoción nueva en un prestigioso entorno de golf Esta nueva promoción residencial de 53 villas modernas se encuentra en el famoso La Finca Golf Resort en Algorfa, una de las zonas más codiciadas de la Costa Blanca Sur. Rodeada de exuberantes paisajes verdes, huertos de cítricos y las onduladas calles del campo de golf, esta ubicación ofrece tranquilidad, privacidad y un estilo de vida mediterráneo de alta calidad, sin dejar de estar cerca de los servicios esenciales y de la costa. Elección de modelos y distribuciones de villas El proyecto ofrece una amplia selección de villas independientes y adosadas en tres tamaños diferentes de aproximadamente 98 m2, 111 m2 o 135 m2. Las viviendas están disponibles en uno o dos niveles y todas cuentan con tres dormitorios y dos baños. Los modelos más grandes también incluyen un aseo para invitados. Las villas de una sola planta disfrutan de un amplio solárium privado en la azotea, mientras que las viviendas de dos niveles cuentan con una gran terraza abierta en la planta superior. Algunas unidades incluyen un sótano y otras ofrecen esta opción con un coste adicional. Todas las villas cuentan con piscina privada y plaza de aparcamiento dentro de la parcela. Diseño al estilo ibicenco y vida al aire libre Las villas destacan por su elegante diseño al estilo ibicenco, con suaves líneas curvas y acabados en blanco brillante que se integran perfectamente con el entorno natural. Las amplias zonas exteriores están diseñadas para disfrutar del clima templado durante todo el año, ofreciendo espacios ideales para relajarse, entretenerse y aprovechar al máximo la vida al aire libre en un tranquilo entorno de golf. Especificaciones de alta calidad y comodidad Todas las viviendas están construidas con un alto nivel de calidad e incluyen una puerta de entrada de seguridad reforzada, cocinas totalmente equipadas, preinstalación de aire acondicionado por conductos y un sistema aerotérmico para el agua caliente sanitaria. Estas características garantizan el confort, la eficiencia energética y una vida moderna, ya sea como residencia permanente o como casa de vacaciones. La Finca Golf Resort y el estilo de vida de Algorfa La Finca Golf Resort es conocido por su campo de golf de campeonato, su hotel de lujo, sus instalaciones de spa, sus restaurantes y sus zonas deportivas, todo ello en un entorno seguro y bien cuidado. Algorfa es un encantador pueblo español que ofrece tiendas locales, restaurantes tradicionales y un ambiente relajado, mientras que las localidades cercanas proporcionan una mayor variedad de servicios y comodidades. Distancias y conexiones clave El campo de golf La Finca se encuentra dentro del complejo. Las playas de Guardamar del Segura están a unos 14 km. Los centros comerciales de Torrevieja y Orihuela Costa están a unos 15 km. Almoradí, Benijófar y Ciudad Quesada están entre 5 y 10 km. El aeropuerto internacional de Alicante está a unos 35 km. Una inversión inteligente en la Costa Blanca Con más de 300 días de sol al año, excelentes conexiones por carretera y proximidad a campos de golf, playas y zonas comerciales, estas villas son ideales para vivir, pasar las vacaciones o invertir. Póngase en contacto con nosotros hoy mismo Asegúrese hoy mismo su nueva villa en La Finca Golf Resort. Póngase en contacto con nosotros ahora para obtener más información o concertar una visita privada.

Localización

Economía

Esta información que se proporciona aquí está sujeta a errores y no forma parte de ningún contrato. La oferta se puede cambiar o retirar sin previo aviso. Los precios no incluyen los costes de compra

POWERED BY HABENO

Cambio de divisas

  • Libras: 520.320 GBP
  • Rublo Ruso: 520.320 RUB
  • Franco Suizo: 550.680 CHF
  • Yuan Chino: 4.777.560 CNY
  • Dolar: 691.020 USD
  • Corona Sueca: 6.526.800 SEK
  • Corona Noruega: 6.713.100 NOK

Solicitar Información

Responsable del tratamiento: MAINDAMA GROUP S.L, Finalidad del tratamiento: Gestión y control de los servicios ofrecidos a través de la página Web de Servicios inmobiliarios, Envío de información a traves de newsletter y otros, Legitimación: Por consentimiento, Destinatarios: No se cederan los datos, salvo para elaborar contabilidad, Derechos de las personas interesadas: Acceder, rectificar y suprimir los datos, solicitar la portabilidad de los mismos, oponerse altratamiento y solicitar la limitación de éste, Procedencia de los datos: El Propio interesado, Información Adicional: Puede consultarse la información adicional y detallada sobre protección de datos Aquí.