New Build     Resale    
Properties

Detached Villa · New Build Alicante (Costa Blanca) · Aspe · Poligono 19

Ref.: 84329
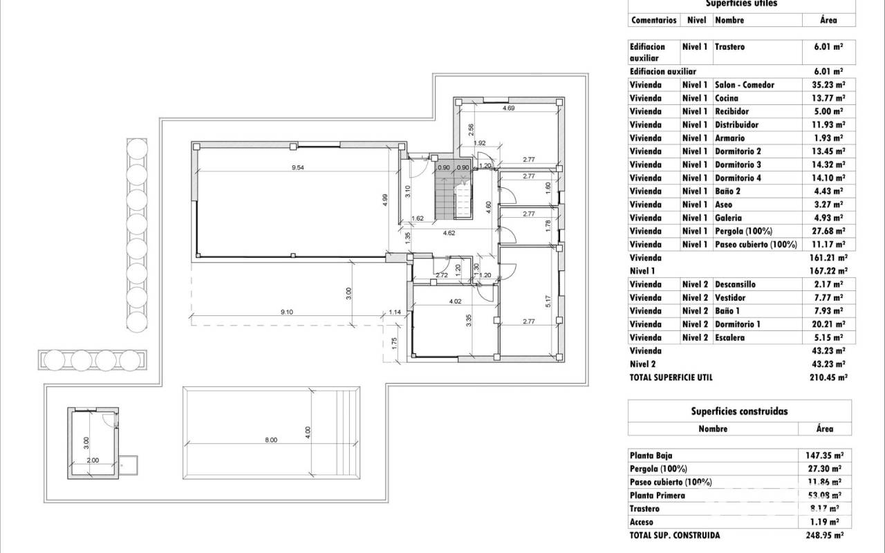
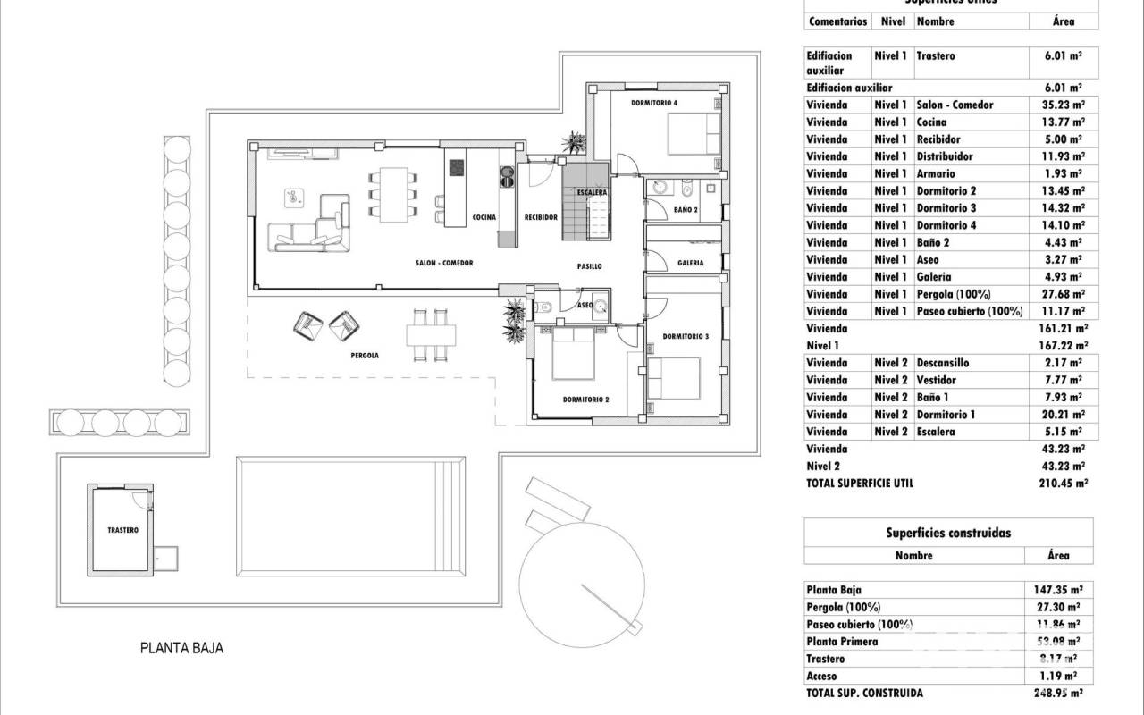
248m2 <13.172m2 4 3 Yes

Key features

Bedrooms: 4
Bathrooms: 3
Built area: 248m2
Plot: 13.172m2
Energy Rating: B

Features

Garden
Private pool
Gated
Near Schools
Air Conditioning: Pre-Installed
Parking - Space
Storage / Trastero
Number of Parking Spaces: 1
Double Bedrooms: 4
Location: Rural, Mountain
Beach: 25000 Meters
Terrace: 38 Msq.
Useable Build Space: 210 Msq.
Energy Rating
Energy rating: B

Description

Newly built villas located in the municipality of Aspe. Newly built villas with several models to choose from, with 2, 3 or 4 bedrooms, on one or two floors and built with slabs or with a structure: depending on the model and the plot chosen, the exact price will be calculated. All the villas are built on rustic plots of over 10,000 m2, of which around 2,500 m2 will be fenced off. The villas have an open-plan kitchen with living room, built-in wardrobes, private swimming pool, porch, storage room and outdoor parking space. There are several plots to choose from. The price is based on a plot priced at €75,000 (if another plot is chosen, the difference will be paid or credited according to the price of the plot). Self-build project, delivery in approximately 12 months from the granting of the licence. If you are looking for a quiet environment, close to typical Spanish villages away from tourist crowds, surrounded by mountains, with a very large plot and about 30 minutes from the sea, this is your home. Aspe is a typical Spanish village with all the amenities for everyday life, surrounded by mountains and with several natural areas nearby where you can go hiking or mountain biking. Located 25 km from the beach, 9 km from Elche and about 20 km from Alicante airport.

Location

Economy

Currency converter text

POWERED BY HABENO

Currency exchange

  • Pounds: 554.509 GBP
  • Russian ruble: 554.509 RUB
  • Swiss franc: 582.473 CHF
  • Chinese yuan: 5.044.658 CNY
  • Dollar: 740.704 USD
  • Swedish krone: 6.995.534 SEK
  • Norwegian krone: 6.908.265 NOK

Request information

Responsable del tratamiento: MAINDAMA GROUP S.L, Finalidad del tratamiento: Gestión y control de los servicios ofrecidos a través de la página Web de Servicios inmobiliarios, Envío de información a traves de newsletter y otros, Legitimación: Por consentimiento, Destinatarios: No se cederan los datos, salvo para elaborar contabilidad, Derechos de las personas interesadas: Acceder, rectificar y suprimir los datos, solicitar la portabilidad de los mismos, oponerse altratamiento y solicitar la limitación de éste, Procedencia de los datos: El Propio interesado, Información Adicional: Puede consultarse la información adicional y detallada sobre protección de datos Aquí.
WhatsApp