New Build     Resale    
Properties

Detached Villa · New Build Murcia (Costa Calida) · Fuente Alamo · Las Palas

Ref.: 30211
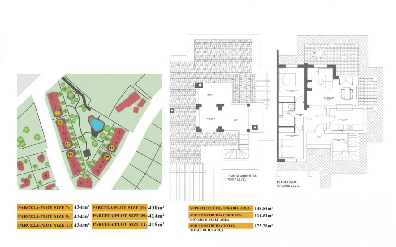
175m2 <430m2 2 1

Key features

Bedrooms: 2
Bathrooms: 1
Built area: 175m2
Plot: 430m2
Energy Rating: B

Features

Near Golf / Golf Resort Property
Air Conditioning: Pre-Installed
Parking - Space
Storage / Trastero
Number of Parking Spaces: 1
Double Bedrooms: 2
Terrace: 45 Msq.
Beach: 7500 Meters
Location: Coastal, Rural, Urbanisation
Useable Build Space: 148 Msq.
Garden
Key Ready
Gated
Energy Rating
Energy rating: B

Description

KEY READY SEMI-DETACHED VILLA IN FUENTE ALAMO, MURCIA Residential of townhouses, independent and semi-detached villas in Fuente Álamo, Murcia. There are seven different models of houses to choose from, designed to suit everyone’s taste. Rustic designs combined with top quality materials and a focus on comfortable living space there is something for everyone. The residents of this private community of beautiful, spacious homes will also be able to enjoy their own communal gardens and swimming pools. This unusual design semi-detached villa has 2 bedrooms and 1 bathroom, independent kitchen, living room with patio doors leading onto the covered porch and semi covered roof top terrace. An options for a private pool at an extra cost. Fuente Álamo de Murcia is a town and municipality in the Region of Murcia, southern Spain. It is situated 22 km northwest of Cartagena and 35 km south west of Murcia. The town lies in the basin of the Mar Menor surrounded by the mountains of Algarrobo, Los Gómez, Los Victorias and the Carrascoy. The water from these mountains flows down into the Rambla de Fuente Álamo and then onto the Mar Menor. Fuente Álamo located 30 minutes from Murcia - Corvera airport.

Location

Economy

Currency converter text

POWERED BY HABENO

Currency exchange

  • Pounds: 209.112 GBP
  • Russian ruble: 209.112 RUB
  • Swiss franc: 221.575 CHF
  • Chinese yuan: 1.935.734 CNY
  • Dollar: 284.616 USD
  • Swedish krone: 2.623.764 SEK
  • Norwegian krone: 2.618.803 NOK

Request information

Responsable del tratamiento: MAINDAMA GROUP S.L, Finalidad del tratamiento: Gestión y control de los servicios ofrecidos a través de la página Web de Servicios inmobiliarios, Envío de información a traves de newsletter y otros, Legitimación: Por consentimiento, Destinatarios: No se cederan los datos, salvo para elaborar contabilidad, Derechos de las personas interesadas: Acceder, rectificar y suprimir los datos, solicitar la portabilidad de los mismos, oponerse altratamiento y solicitar la limitación de éste, Procedencia de los datos: El Propio interesado, Información Adicional: Puede consultarse la información adicional y detallada sobre protección de datos Aquí.
WhatsApp